Gewerbe

Büros

Neubau eines Bürogebäudes

Bauort: Diepholz

Bruttogrundfläche: ca. 1.092 m²

Nettogrundfläche: ca. 928 m²

Fertigstellung: 2012

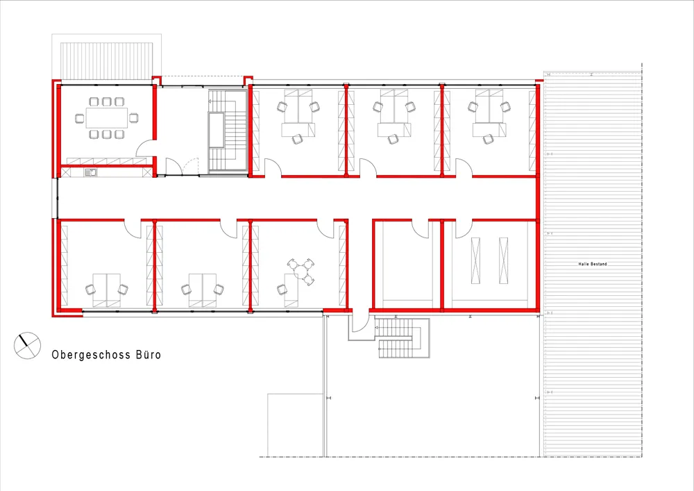
Neubau eines Bürogebäudes

Bauort: Visbek

Bruttogrundfläche: ca. 2.200 m²

Nettogrundfläche: ca. 1.963 m²

Fertigstellung: 2019

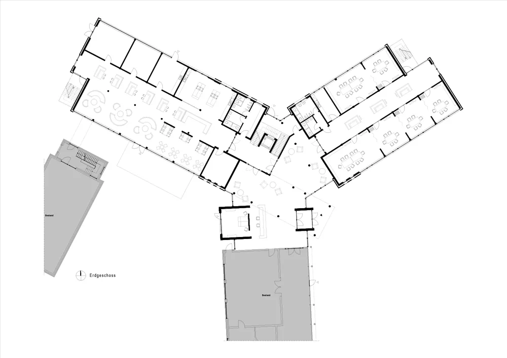
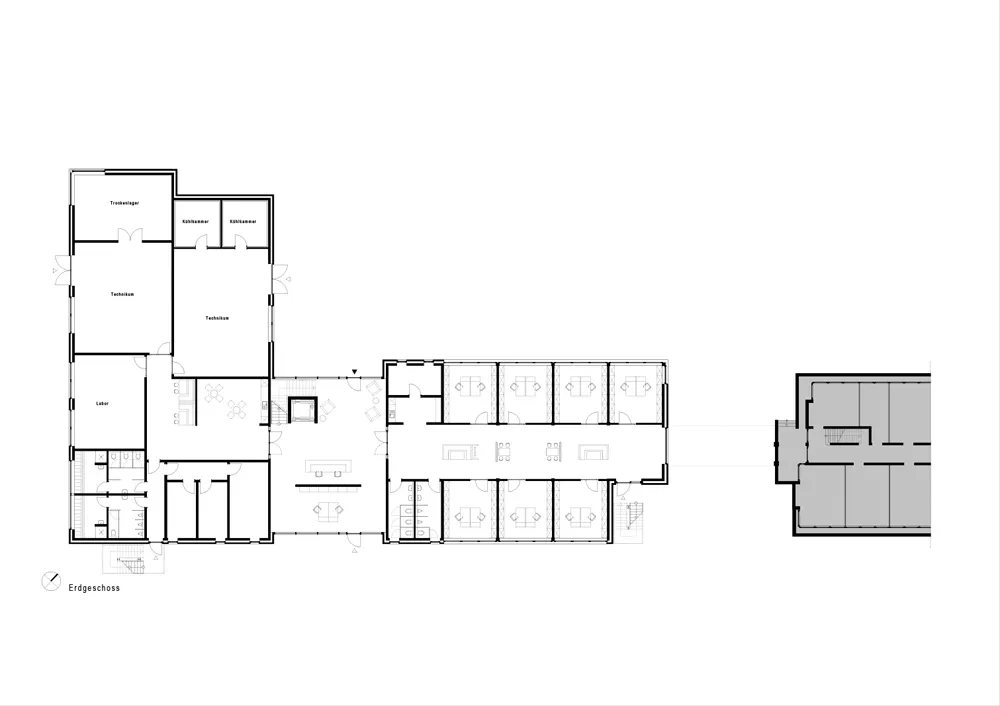
Erweiterung eines Labor- und Bürogebäudes

Bauort: Neunkirchen-Vörden

Bruttogrundfläche: ca. 2.606 m²

Nettogrundfläche: ca. 2.188 m²

Planung: 2017-2019

Hallen

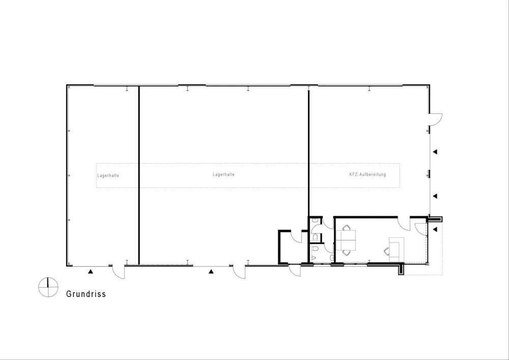
Neubau einer Lagerhalle

Bauort: Diepholz

Bruttogrundfläche: ca. 450 m²

Nettogrundfläche: ca. 407 m²

Fertigstellung: 2021

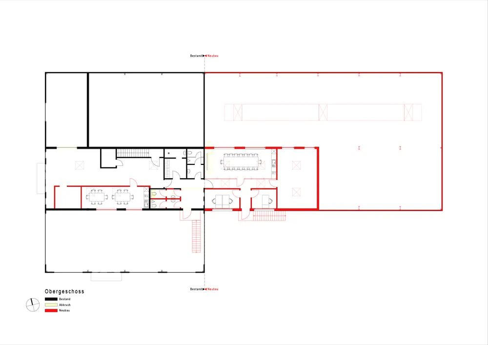
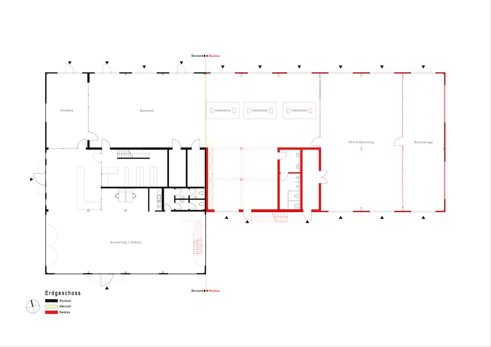
Erweiterung einer Kfz-Werkstatt mit Showroom und Büroräumen

Bauort: Diepholz

Bruttogrundfläche vorher: ca. 948 m²

Bruttogrundfläche nachher: ca. 1.925 m²

Nettogrundfläche vorher: ca. 584 m²

Nettogrundfläche nachher: ca. 1.134 m²

Fertigstellung: 2024

Umgestaltung Bahnhof

Bauort: Diepholz

Nettogrundfläche Umbau: ca. 245 m²

Planung: 2024-2025

Besonderheiten: Umgestaltung der Eingangshalle des Diepholzer Bahnhofs inkl. Kiosk, Bäckerei und Reisezentrum mit Nebenräumen

Büro & Halle

Neubau eines Bürogebäudes mit einer Lagerhalle

Bauort: Barnstorf

Bruttogrundfläche Büro: ca. 872 m²

Nettogrundfläche Büro: ca. 725 m²

Bruttogrundfläche Halle: ca. 601 m²

Nettogrundfläche Halle: ca. 585 m²

Fertigstellung: 2024