Wohnen - Umbau

Einfamilienhäuser

Anbau an ein Einfamilienhaus in Holzrahmenbauweise

Bauort: Diepholz

Bruttogrundfläche vorher: ca. 323 m²

Bruttogrundfläche nachher: ca. 420 m²

Nettogrundfläche vorher: ca. 228 m²

Nettogrundfläche nachher: ca. 350 m²

Fertigstellung: 2026

Besonderheiten: Zweigeschossiger Anbau für ein Schlafzimmer und eine Sauna und Aufstockung der Garage für ein weiteres Kinderzimmer

Anbau an ein Einfamilienhaus in Holzrahmenbauweise

Bauort: Diepholz

Bruttogrundfläche vorher: ca. 272 m²

Bruttogrundfläche nachher: ca. 334 m²

Nettogrundfläche vorher: ca. 228 m²

Nettogrundfläche nachher: ca. 277 m²

Fertigstellung: 2020

Besonderheiten: Zweigeschossiger Anbau für weitere Schlafzimmer, sowie Bad und Ankleidezimmer

Umbau eines Einfamilienhauses in ein Zweifamilienhaus

Bauort: Einen, Goldenstedt

Bruttogrundfläche: ca. 214 m²

Nettogrundfläche: ca. 163 m²

Fertigstellung: 2019

Besonderheiten: Umbau und Wiederaufbau nach einem Sturmschaden von einem Einfamilienhaus in ein Wohnhaus mit zwei Wohneinheiten

Mehrfamilenhäuser

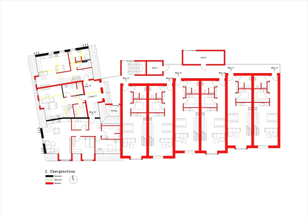
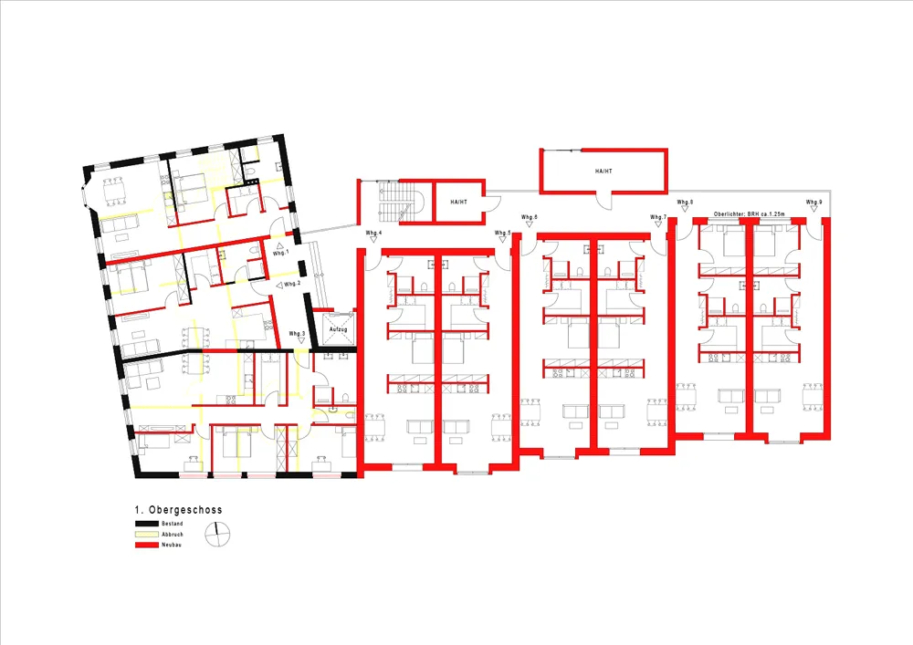
Umbau eines Geschäfts- und Wohnhauses in ein Mehrfamilienwohnhaus

Bauort: Wagenfeld

Bruttogrundfläche: ca. 892 m²

Nettogrundfläche Wohnungen: ca. 40-50 m²

Fertigstellung: 2026

Verschiedenes

Erweiterung eines Geschäfts- und Wohnhauses – Wettbewerb

Bauort: Diepholz

Bruttogrundfläche vorher: ca. 1.080 m²

Bruttogrundfläche nachher: ca. 3.214 m²

Nettogrundfläche vorher: ca. 870 m²

Nettogrundfläche nachher: Ladenflächen ca. 63-130 m²

Wohnungen ca. 60-112 m²

Planung: 2023

Besonderheiten: Wettbewerb zur Innenstadterneuerung

Ziel: Den Bestand erhalten und mit einem modernen Neubau, der sich in die umliegende Bebauung einfügt, erweitern

Erweiterung eines Wohngebäudes zum Seniorenwohnheim – Studie

Bauort: Groß Lobke

Bruttogrundfläche: ca. 1.672 m²

Nettogrundfläche: ca. 1.247 m²

Planung: 2023

Besonderheiten: Das Wohngebäude aus dem Jahr 1889 ist die Grundlage für die Erweiterung einer Seniorenwohnheimnutzung