Wohnen - Neubau

Einfamilienhäuser

Einfamilienhaus in Holzrahmenbauweise

Bauort: Drebber

Bruttogrundfläche: ca. 267 m²

Nettogrundfläche: ca. 210 m²

Fertigstellung: 2022

Besonderheiten: Dieses moderne Einfamilienhaus war in nur 16 Wochen bezugsfertig

Einfamilienhaus in Massivbauweise

Bauort: Stemwede

Bruttogrundfläche: ca. 283 m²

Nettogrundfläche: ca. 228 m²

Fertigstellung: 2026

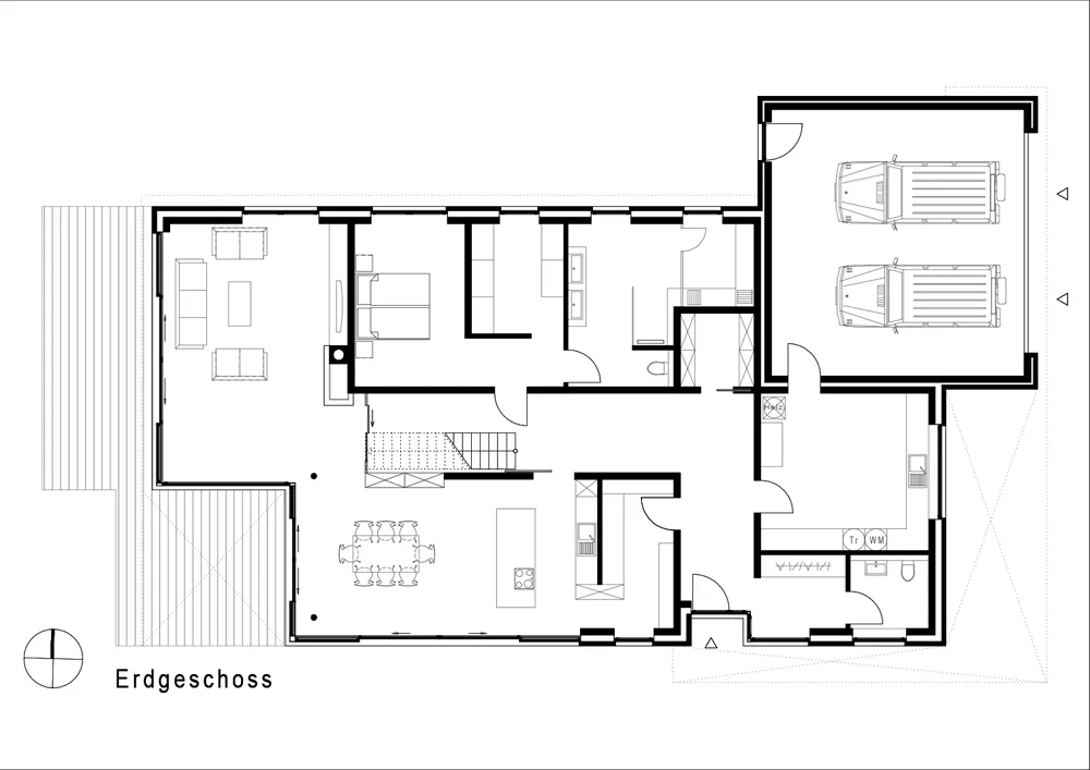
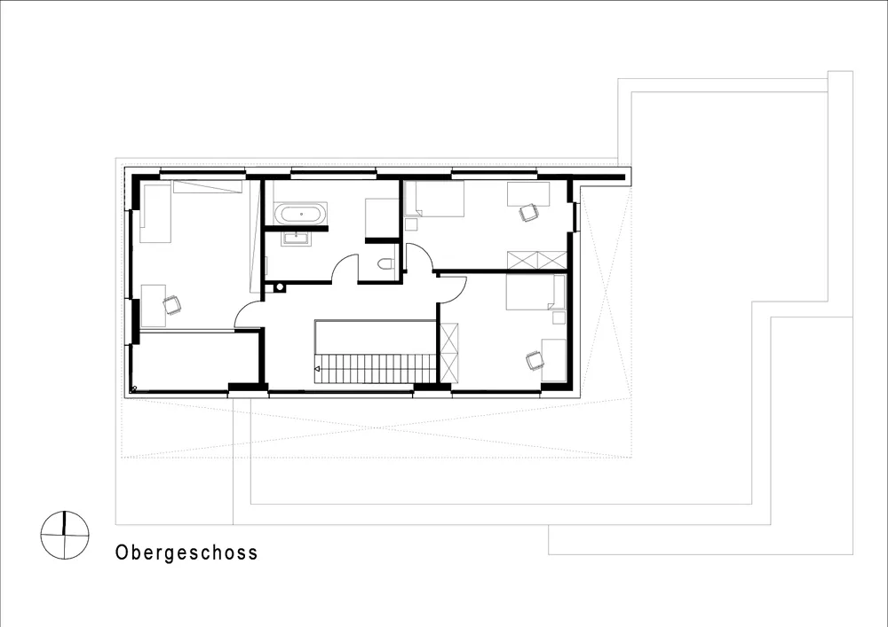
Einfamilienhaus in Massivbauweise

Bauort: Diepholz

Bruttogrundfläche: ca. 336 m²

Nettogrundfläche: ca. 257 m²

Fertigstellung: 2022

Mehrfamilenhäuser

Mehrfamilienhaus mit 5 Wohneinheiten

Bauort: Diepholz

Bruttogrundfläche: ca. 860 m²

Wohnungen: ca. 75-98 m²

Fertigstellung: 2018

Mehrfamilienhaus mit 6 Wohneinheiten

Bauort: Diepholz

Bruttogrundfläche: ca. 632 m²

Wohnungen: ca. 86-91 m²

Fertigstellung: 2021

Besonderheiten: Dieses Mehrfamilienhaus ist ein Bau in Massiv- und Holzrahmenbauweise

Mehrfamilienhaus mit 10 Wohneinheiten

Bauort: Diepholz

Bruttogrundfläche: ca. 1.232 m²

Wohnungen: ca. 60-110 m²

Planung: 2023

Besonderheiten: Bei Interesse können die Grundrisse zu diesem Objekt gerne angefragt werden!

Verschiedenes

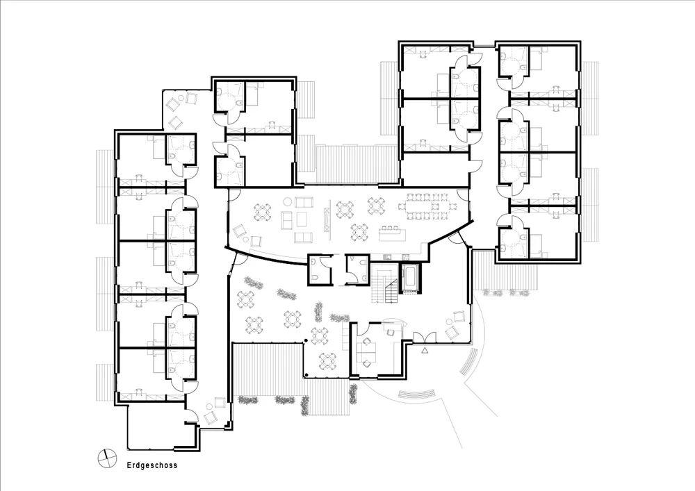
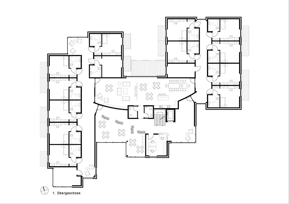
Wohnheim für saisonale Arbeitskräfte oder z.B. Studenten – Studie

Bauort: Diepholz

Bruttogrundfläche: ca. 3.049 m²

Wohnungen: ca. 30-45 m²

Planung: 2023-2025

Besonderheiten: Dieses Wohngebäude umfasst 63 Wohnungen, in denen bis zu 90 Personen leben können. Bei Interesse können die Grundrisse zu diesem Objekt gerne angefragt werden!

Seniorenwohnheim – Studie

Bauort: Nordstemmen

Bruttogrundfläche: ca. 2.349 m²

Wohnungen: ca. 1.995 m²

Planung: 2020-2022

Besonderheiten: In diesem modernen Wohngebäude ist Platz für bis zu 35 Senioren

Abriss einer Scheune, Neubau eines Gästehauses

Bauort: Visbek

Bruttogrundfläche: ca. 475 m²

Wohnungen: ca. 397 m²

Planung: 2025